铺地毯
提交数: 160, 通过率: 69.38%, 平均分: 76.38
题目描述:
为了准备一个独特的颁奖典礼,组织者在会场的一片矩形区域(可看做是平面直角坐标系的第一象限)铺上一些矩形地毯。一共有 n 张地毯,编号从 1 到n 。现在将这些地毯按照编号从小到大的顺序平行于坐标轴先后铺设,后铺的地毯覆盖在前面已经铺好的地毯之上。
地毯铺设完成后,组织者想知道覆盖地面某个点的最上面的那张地毯的编号。注意:在矩形地毯边界和四个顶点上的点也算被地毯覆盖。
输入格式:
输入共n+2 行。
第一行,一个整数n ,表示总共有 n 张地毯。
接下来的n 行中,第 i+1 行表示编号i 的地毯的信息,包含四个正整数 a ,b ,g ,k ,每两个整数之间用一个空格隔开,分别表示铺设地毯的左下角的坐标(a ,b )以及地毯在x轴和y 轴方向的长度。
第n+2 行包含两个正整数 x 和y,表示所求的地面的点的坐标(x ,y)。
输出格式:
输出共1 行,一个整数,表示所求的地毯的编号;若此处没有被地毯覆盖则输出-1 。
样例输入:
(双击复制)样例1: 3 1 0 2 3 0 2 3 3 2 1 3 3 2 2 样例2: 3 1 0 2 3 0 2 3 3 2 1 3 3 4 5
样例输出:
(双击复制)样例1: 3 样例2: -1
提示:
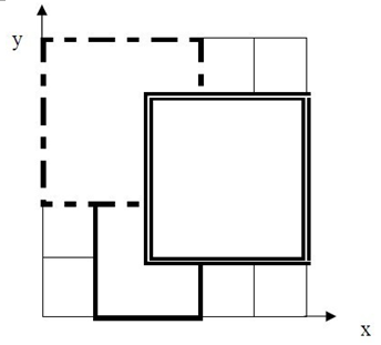
【样例解释1】
如下图,1 号地毯用实线表示,2 号地毯用虚线表示,3 号用双实线表示,覆盖点(2,2)的最上面一张地毯是 3 号地毯。

【数据范围】
对于30% 的数据,有 n ≤2 ;
对于50% 的数据,0 ≤a, b, g, k≤100;
对于100%的数据,有 0 ≤n ≤10,000 ,0≤a, b, g, k ≤100,000。
时间限制: 1000ms空间限制: 256MB
来源: NOIP2011提高t1